Dom sprzedaż Santok, Janczewo, 4 pokoje, 133 m2

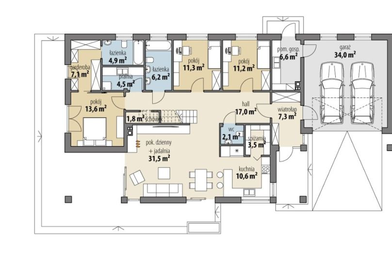
rzut nieruchomosci poziom I
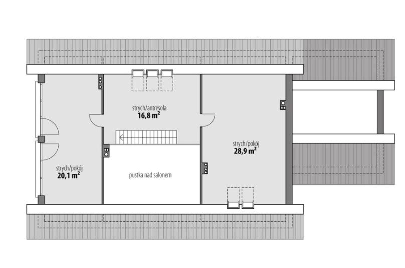
rzut nieruchomosci poziom II
Janczewo
gmina Santok
powiat gorzowski
690 000
(5 170 zł/m2)
133.5
m2 powierzchnia domu
wolnostojący
z 2025 r.
4
pokoje
1 087
m2 powierzchnia działki
ponad 14 dni
1020/2562/ODS
Sylwia Zielińska
Sylwia Zielińska

pośrednik w obrocie nieruchomościami
nr licencji 9847
Sylwia Zielińska
Sylwia Zielińska

pośrednik nieruchomości nr licencji 9847

Opis nieruchomości
Na sprzedaż dom w trakcie budowy, położony w Janczewie przy ul. Owocowej. Cena do negocjacji!
Nieruchomość z doskonałym dojazdem do centrum Gorzowa, a zarazem w zacisznym zakątku w otoczeniu zieleni. Graniczy z Lasami Państwowymi. W sąsiedztwie także zabudowa jednorodzinna wolno stojąca. W niedalekiej odległości szkoła podstawowa, przedszkole, sklepy, itp.

Jest to dom parterowy o powierzchni użytkowej 133,47 m2, z nieużytkowym poddaszem, w całości podpiwniczony.
Dom w trakcie budowy w stanie surowym, budowany według projektu Karolina VI lustrzane odbicie, gdzie układ pomieszczeń kształtuje się następująco:
- parter - część wypoczynkowa to salon z jadalnią z podniesionym sufitem, aneks kuchenny, spiżarnia, wc dla gości. W części prywatnej mamy do dyspozycji dwie sypialnie oraz moduł rodziców, na który składa się sypialnia, garderoba i łazienka. Uzupełnieniem tej strefy jest pralnia, toaleta i ogólnodostępna łazienka. Z hallu prowadzą schody na poddasze oraz do piwnicy.
- garaż dwustanowiskowy w bryle z wejściem z domu i pom. gospodarcze z wyjściem na zewnątrz - dodatkowa powierzchnia 37,83 m2
- fantastyczna otwarta przestrzeń poddasza, gdzie można utworzyć 2 dodatkowe sypialnie lub inne pomieszczenia - dodatkowe 71,90 m2
- piwnica - na całej długości budynku - dodatkowe 184,10m2 - mogąca służyć jako schron.

Ściany zewnętrzne warstwowe, z bloczków gazobetonowych Silka, ławy fundamentowe, żelbetowe. Ściany wewnętrzne z bloczków wapienno-piaskowych. Strop gęstożebrowy z elementami stropu monolitycznego. Konstrukcja dachu drewniana, wykonanie o zwiększonej gęstości z suchego drewna, co zapewnia większą stabilność dachu.

Media: woda z wodociągu w projekcie, w cenie doprowadzona zostanie sieć do działki, szambo osadzone o wlk. 10 kubików, skrzynka elektryczna na działce.
Ogrzewanie - do zrobienia ogrzewanie podłogowe z pompą ciepła. Ustawienie budynku i wielkość dachu pozwala na funkcjonalny montaż paneli fotowoltaicznych.

Działka, na której stoi dom posiada powierzchnię 1087 m2, jest częściowo ogrodzona. Ogrodzenie solidne z fundamentem. Klasa gruntu Bp.
Wykonano odprowadzenie wody opadowej do studni chłonnej.

Niewątpliwą zaletą tej nieruchomości jest jej położenie, doskonały dojazd do Gorzowa oraz nietuzinkowy projekt dla amatorów nowoczesnego designu!
Mimo iż dom wymaga prowadzenia prac wykończeniowych, Nabywca może od początku zaplanować jego funkcjonalność i wygląd, zgodny ze swoimi preferencjami.

Oferta warta swojej ceny ze względu na solidne wykonanie i wysokiej jakości materiały użyte do jego budowy.
Szczególnie polecam i zapraszam na prezentację!
Historia zmian ceny nowość
data zmiana zmiana całkowita cena
2026-03-25690 000